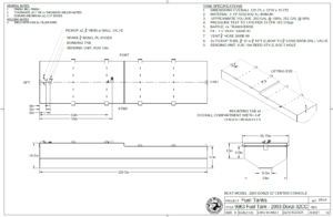
The fuel tanks in our replacement tank database have been reverse engineered from a combination of customer provided drawings and measurements, direct dimensional takeoffs of the original tanks, and original OEM drawings. While we can 100% fully guarantee that the tank you receive will exactly match the drawing you approve, we can’t guarantee that the source of the dimensions are 100% accurate for your particular boat, even if it matches the year/make/model. There are thousands of various boat models produced in past few decades in relatively low quantities, so we operate with a highly customizable and flexible production model. Please keep in the mind the following:
- The original customer measurements may not have been accurate or intentionally modified to change capacity or improve installation.
- The original OEM drawing may have errors or not correspond accurately the correct year/make/model.
- The boat manufacturer may have modified the fuel tank design for the same boat year/make/model at anytime throughout their production.
- It is not uncommon to see tank measurements from the exact same year/make/model vary by +/- 0.5 to 1″ for no observable reason other than perhaps less advanced manufacturing techniques and quality control.
It is the customer’s responsibility to physically measure their original tank to verify it matches our detailed drawing (sent after purchase!), or physically measure their tank installation space, to confirm that the tank on the drawing will work for their situation.
We strongly recommend that you pull your tank, measure it, and observe the installation situation before completing your order. You may uncover that you need useful modifications like shaving dimensions or moving fittings and mounting brackets for optimal installation, or you may find that you can increase capacity by increasing one or more dimensions. We will allow reasonable modifications to all tank order without additional charge, especially when it improves our knowledge base for future customers.
If you choose to order the tank without following the above advise, or have other reason to be certain the dimensions will be correct, you are doing so at your own risk. We will not accept returns or exchanges on tank fitment issues if the tank you receive matches the drawing you approved.